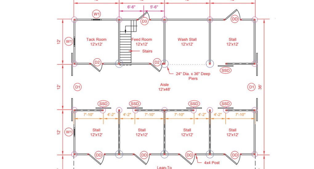
36×48 High Profile barn includes (5) 12×12 stalls, 12×12 tack room, 12×12 feed room, 12×12 wash stall, windows in aisle doors, stall windows upgraded to Dutch doors with windows and grills, dormers, 8′ overhang, metal roof and more…
Project Showcase
High Profile Barn – Charlottesville, VA
Project Details
Reference Number: 683
Barn Type:
High Profile
Barn Size:
36×48
# of Stalls:
5
Overhang:
1
Finish:
Unfinished
Location:
Charlottesville, VA 22903
Please let us know the reference number of the structure you’re interested in.
Click the button below to see run-ins, shedrows and modular barns in your neighborhood




