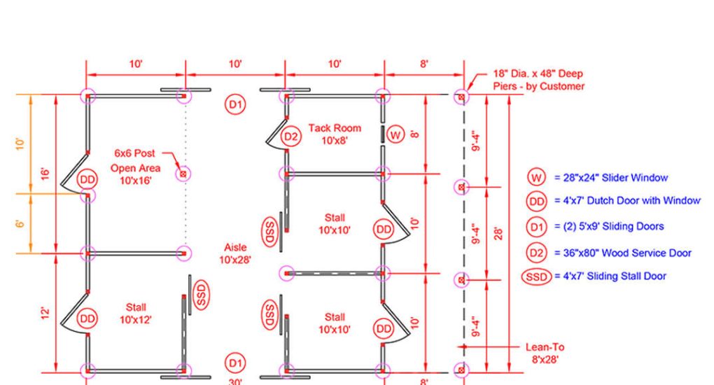
30×28 Low Profile includes 10×12 stall, (2) 10×10 stalls, 10×8 stall, 10×16 open storage area and 8′ overhang
Project Showcase
Low Profile Barn – St. Johnsbury, VT
Project Details
Reference Number: 954
Barn Type:
Low Profile
Barn Size:
30×28
# of Stalls:
3
Overhang:
1
Finish:
Unfinished
Location:
St. Johnsbury, VT 05819
Please let us know the reference number of the structure you’re interested in.
Click the button below to see run-ins, shedrows and modular barns in your neighborhood




