Skip to content

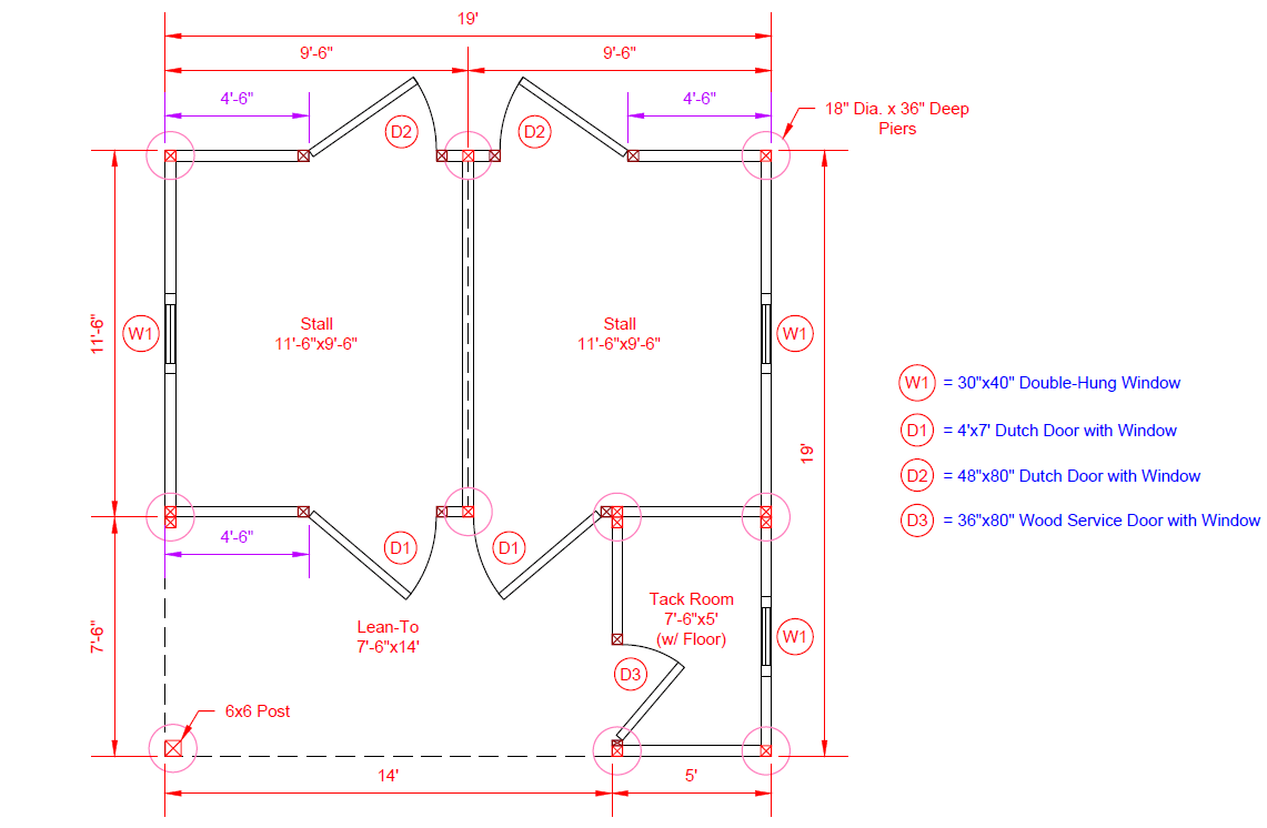
11’6” x 19’ Horse Barn with 7’6” Overhang – Harrisburg Horse World Expo Show Barn!

$28,410.00

Reserve today with a $2,841.00 deposit

LP SmartSide Board & Batten Siding – Painted White with Black Trim

Black Metal Roof

  • (2) 11’6″ x 9’6″ Stalls
  • (1) 7’6″ x 5′ Tack Room
  • (2) 4’x7′ Dutch Doors with Windows
  • 36″x80″ Wood Service Door with 9 Lite Window in Tack Room
  • 30″x40″ ProVia Vinyl White Double-Hung Window in Tack Room
  • (2) 30″x40″ ProVia Vinyl White Double Windows in Each Stall
  • Chew guards on Kickboard in stalls
  • 24” Cupola with Copper Roof and Copper Horse Weathervane
  • Gable Vents
  • Price includes delivery & set up within 100 miles of Harrisburg – Call for a quote for freight charges to your location!
  • Photos to come!
  • FINANCING AVAILABLE!
Size
Shingles
Layout
12×20
Black Metal
Shedrow Barn

Pay a deposit $2,841.00

*Price does not include shipping or sales tax. We will contact you with shipping costs, estimated lead time and final balance due in order to finalize the sale.

We will be transferring you to our 'sister' company – Stoltzfus Structures.