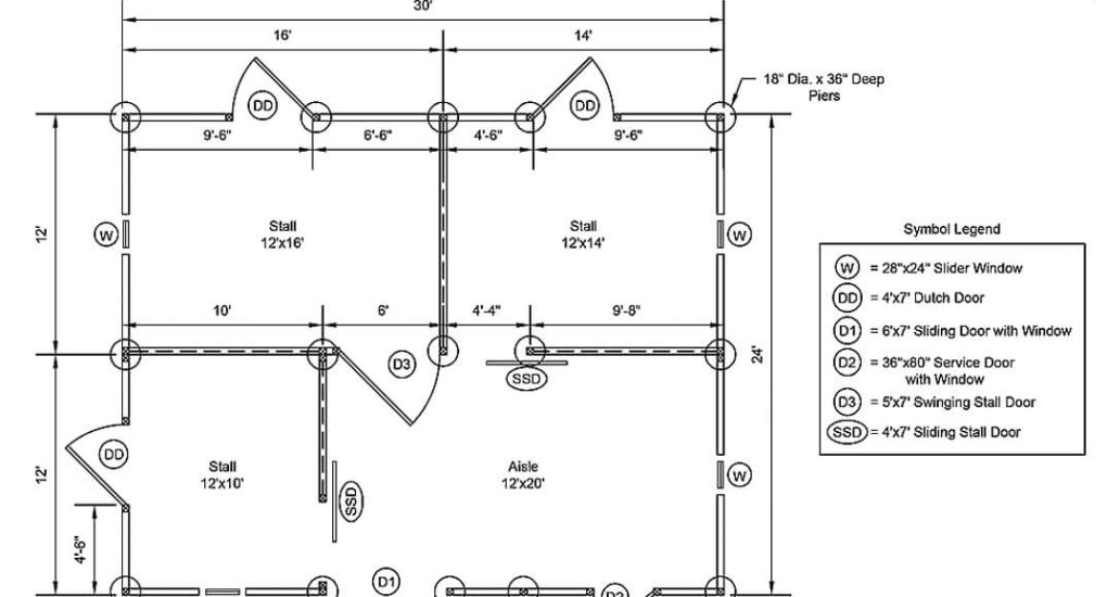
24×30 Double-Wide Barn. Includes: (2) 12×15 stalls, 10×12 stall, 20×12 aisle
Project Showcase
Double-Wide Barn – Mullica Hill, NJ
Project Details
Reference Number: 6006
Barn Type:
Double-Wide
Barn Size:
24×30
# of Stalls:
3
Overhang:
Finish:
Unfinished
Location:
Mullica Hill, NJ 08062
Please let us know the reference number of the structure you’re interested in.
Click the button below to see run-ins, shedrows and modular barns in your neighborhood





