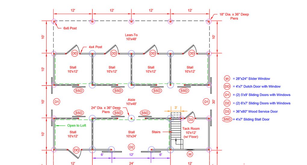
30×48 High Profile barn includes (5) 10×12 stalls, 10×24 stall, 10×12 tack room, (2) 10′ overhangs, metal roof, gable vents, ridge vent, upgrade loft door to double sliding door with window, upgrade stall windows to Dutch doors with windows/grills, windows in aisle doors, double 6×7 sliding door with window in 10×24 stall
Project Showcase
High Profile Barn – Rogersville, TN
Project Details
Reference Number: 699
Barn Type:
High Profile
Barn Size:
30×48
# of Stalls:
6
Overhang:
2
Finish:
Unfinished
Location:
Rogersville, TN 37857
Please let us know the reference number of the structure you’re interested in.
Click the button below to see run-ins, shedrows and modular barns in your neighborhood








