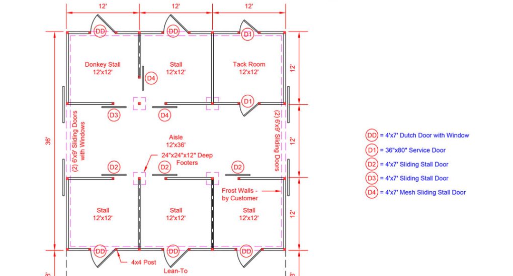
36×36 Low Profile with 8′ Overhang. Includes: (5) 12×12 stalls, 12×12 tack room, 4×7 mesh sliding stall door between 2 of the stalls, mesh stall stall fronts with “V” yokes
Project Showcase
Low Profile Barn – North Kingstown, RI
Project Details
Reference Number: 934
Barn Type:
Low Profile
Barn Size:
36×36
# of Stalls:
5
Overhang:
1
Finish:
Unfinished
Location:
North Kingstown, RI 02874
Please let us know the reference number of the structure you’re interested in.
Click the button below to see run-ins, shedrows and modular barns in your neighborhood






