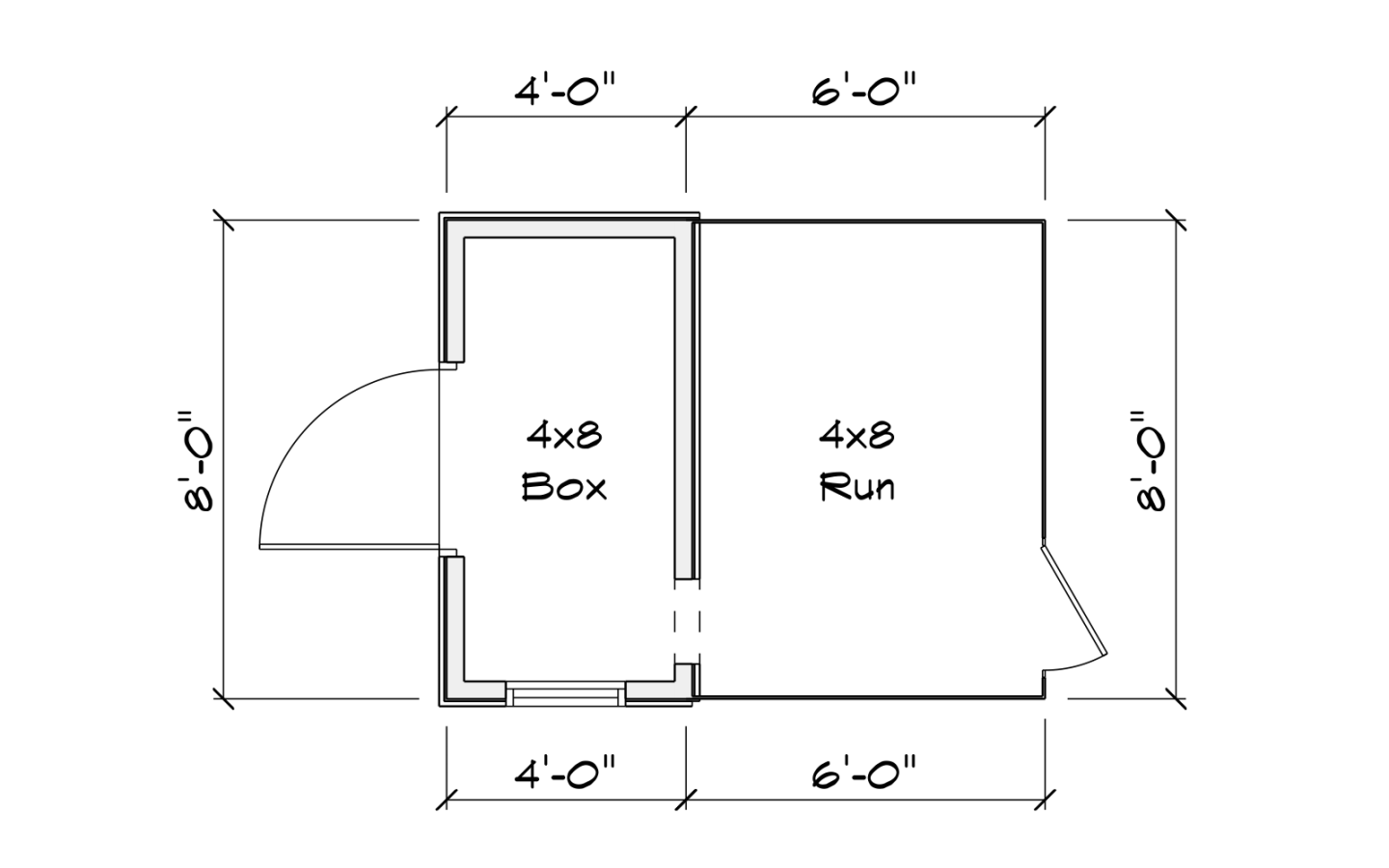
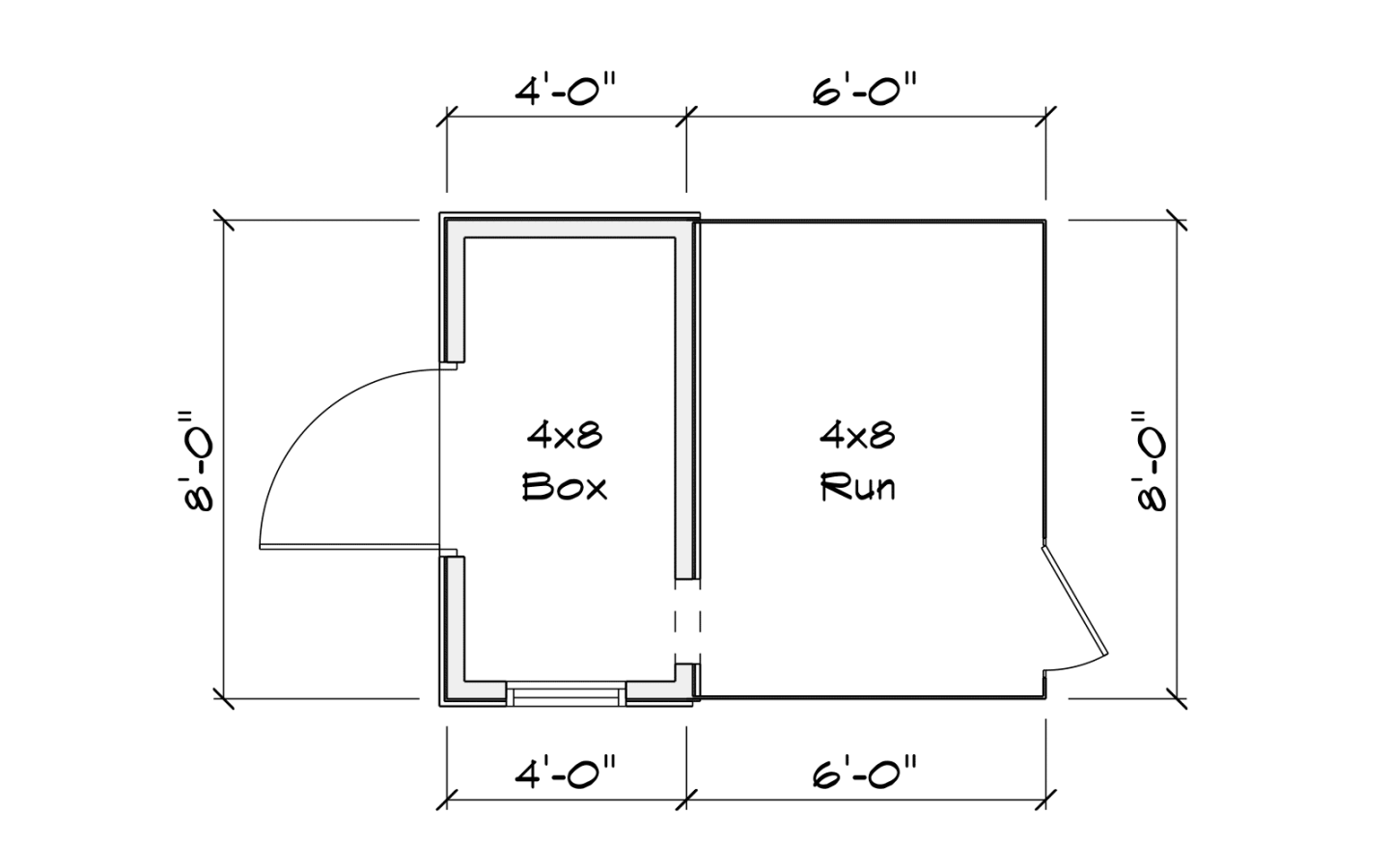
Notice the 4’ high Glasbord panel on the exterior wall of this kennel’s run and the vinyl clad posts…
This is included as a Standard Feature on kennels with the vinyl (or metal) siding upgrade.
The seamless panel protects the siding underneath from damage by scratching or chewing dogs. But – MORE importantly –it protects your dog. Without it, a dog with destructive habits can become injured or worse by swallowing bits of indigestible siding or creating a sharp edge which could lead to injury.
This protective panel can easily be added as an upgrade on any or our wood-sided kennels as well.












