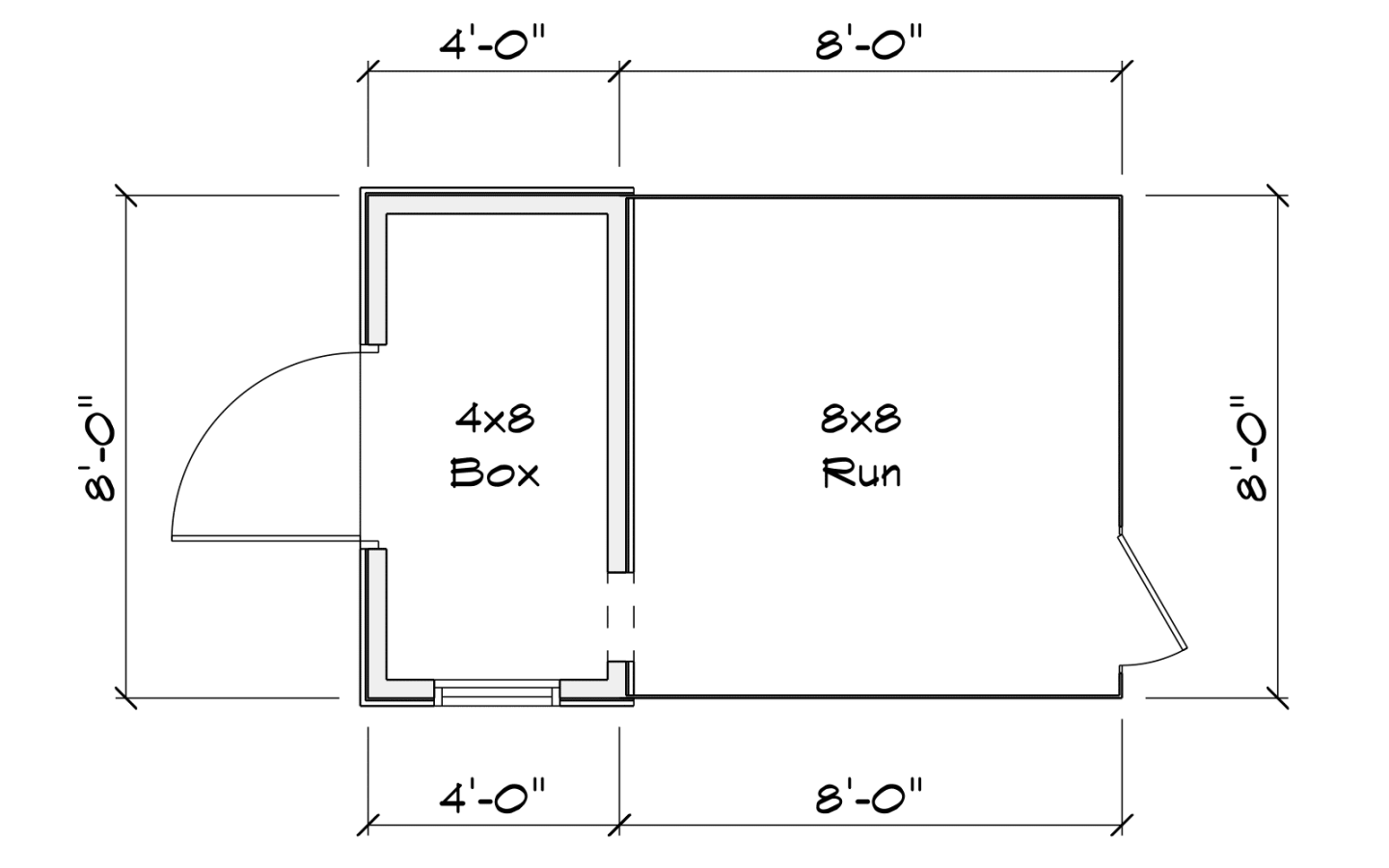
Some dogs just need a little more space. If this sounds like your canine companion, then this 8×12 kennel is for you. Perfect for large dogs, or a pair of dogs who don’t mind sharing the same space, this is one versatile kennel option for your yard!
This prefab dog kennel is truly heads (and tails) above the rest, thanks to its impeccable attention to detail. This kennel comes with our standard insulated fiberglass “man door” with a keyed latch. You can even upgrade our doors to include windows, or add a chain link, dog-proof “screen” door between the exterior “man door” and the interior dog box.











