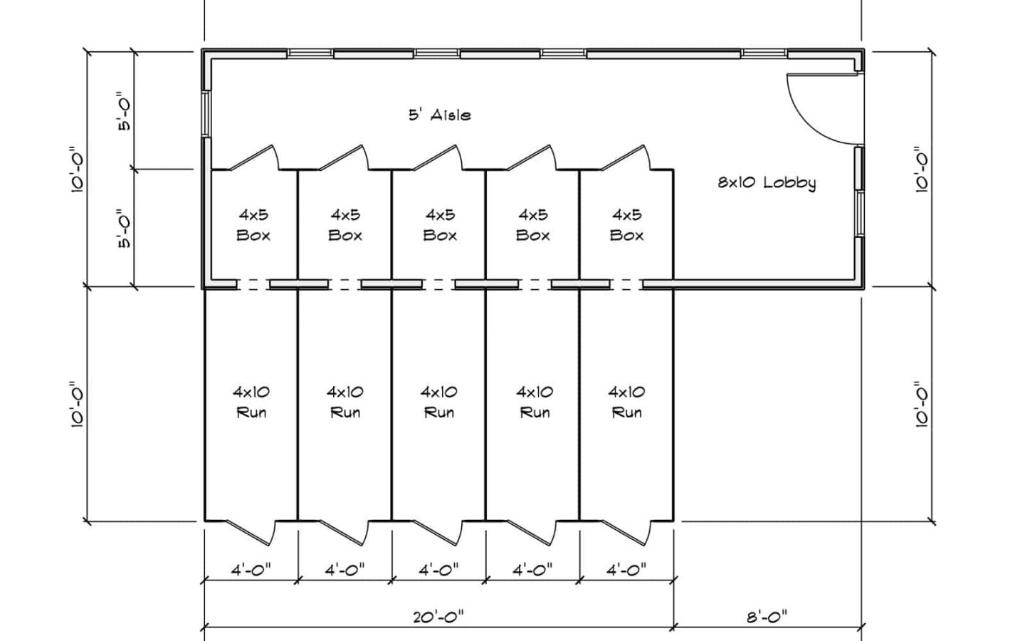
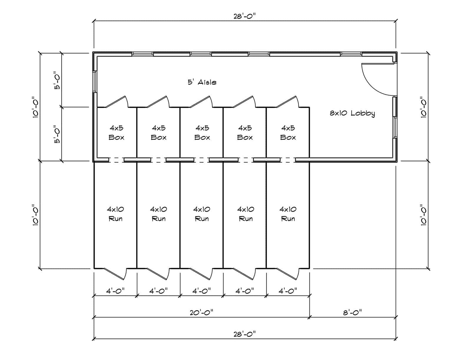
If you are looking for a durable, easy-to-clean dog kennel that truly does it all, take a look at this 20×28 Commercial Dog Kennel, wth a 10′ run. Perfect for large packs of dogs, this kennel offers both indoor and outdoor living areas as well as a 5’ 5-foot-wide feeding alley and walkway.
Designed with long-lasting durability in mind, this traditional outdoor dog kennel will provide the canines in your life with a durable home that will keep them protected from the elements. This is truly the next best thing to keeping pets in a home with you.
We love this large, sturdy dog kennel for breeders, rescues, and hunting dogs as it offers plenty of space for five dogs, with designated indoor and outdoor areas. There is also an 8’x10’ lobby area where you can store food and equipment, place a utility sink, and more.











