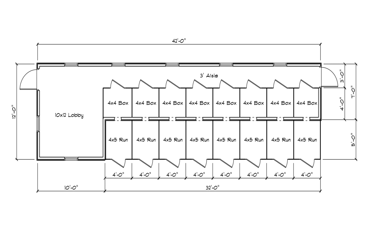
If you have lots of dogs on your hands, then you need an XL kennel designed with multiples in mind! This is just what you will get with this oversized 12×42 Commercial Dog Kennel. This kennel features eight separate dog boxes and eight attached outdoor runs, so each dog has their own dedicated indoor and outdoor space.
When you need to house lots of dogs at once but want to make sure each pooch has their own place to call home, there is no better option than this eight-dog kennel. Put this custom-designed kennel on your property as-is or upgrade it to include our comprehensive electrical system and bring even more features to your new outdoor structure!












