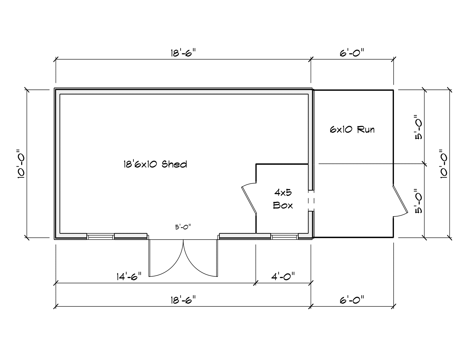
As one of our largest and most impressive residential canine structures, there is a lot to love about this 10×20 shed/kennel. This expansive backyard building features several designated areas, including an over 18-foot-long storage shed with windows and an easy-access 5-foot double door.
Of course, this shed also features plenty of room for your canine companion. This includes a 4’x5 insulated box that comes with its own storage loft. Finally, there is a 6’x10’ covered run for your dog to enjoy protected outdoor living. In addition to the unique layout of this storage shed, this structure has a number of additional features, including multiple doors and compartments for multi-use function, 30-Year architectural shingles, easy-clean design, poly decking underneath the run, non-toxic polyurea flooring, flexible dog door with stainless, chew-deterring edging, and an 18”x 23” single pane window with screens







