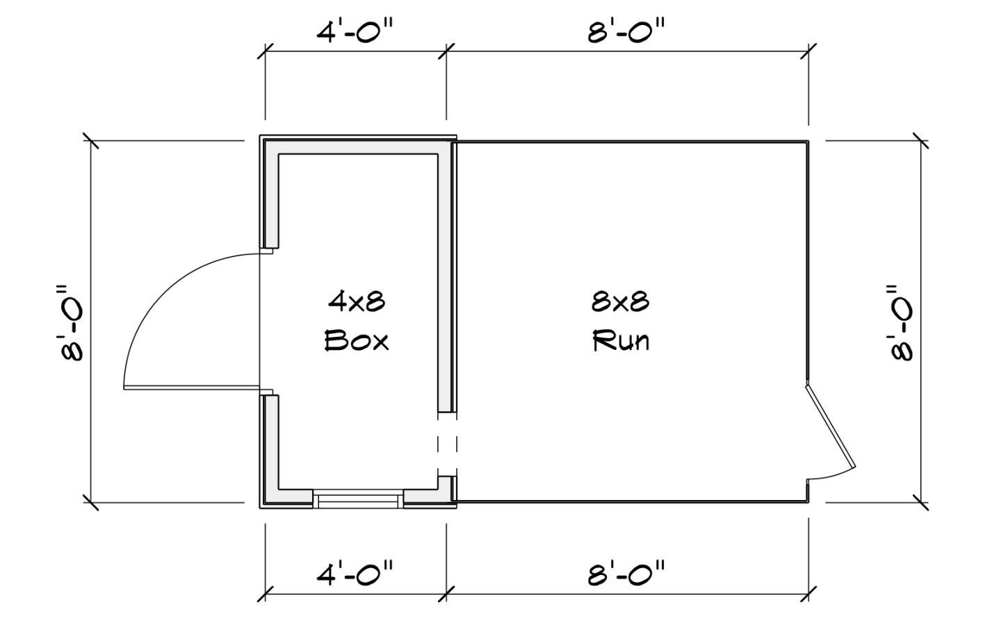
Some dogs just need a little more space. If this sounds like your canine companion—then this 8×12 kennel is for you. Perfect for large dogs, or a pair of dogs who don’t mind sharing the same space, this is one versatile kennel option for your yard!
This prefab dog kennel is truly heads (and tails) above the rest, thanks to its impeccable attention to detail. This kennel comes with our standard insulated fiberglass “man door” with a keyed latch. You can even upgrade our doors to include windows, or add a chain link, dog-proof “screen” door between the exterior “man door” and the interior dog box.
Of course, we use only premium supplies, similar to those you would expect in your own home, to create these beautiful kennels. These aren’t the only features you will love with this kennel either, this 8×12 structure comes with the following features:
- Board and batten siding with our “Natural” stain finish
- “Weatherwood” exterior shingles.
- Non-toxic polyurea flooring inside the kennel box
- Pet-safe poly decking in the run
- Single pane 18”x23” exterior window with screen
When your dog deserves the best of the best, you can always count of Horizon Structures to deliver a safe, beautiful, and high-quality structure the whole family will love.














