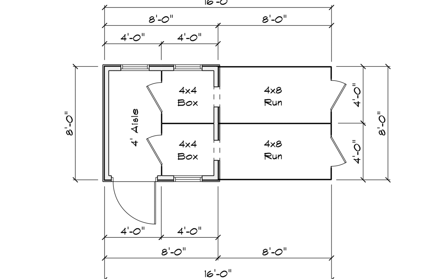
When you have multiple dogs as part of your family, it is important to make sure that you have the appropriate housing for your pups. This is where our 8×16 Double Kennel comes in. We love that this kennel allows your dogs to stay near each other but ensures they have their own designated spaces as well.
Upgrade the standard chain-link divider panels with solid partitions. Four feet high and made of white Azek with chain-link above to the standard full panel height, allowing full natural light and air flow above while keeping dogs separated below. We love using this Azek material in our kennels because this product is durable and “dog-friendly.” Azek is made of PVC, is easy to clean, and is impervious to moisture and insects. This material also resists stains, mold, scratches, mold, and mildew, making it perfect for outdoor structures!








